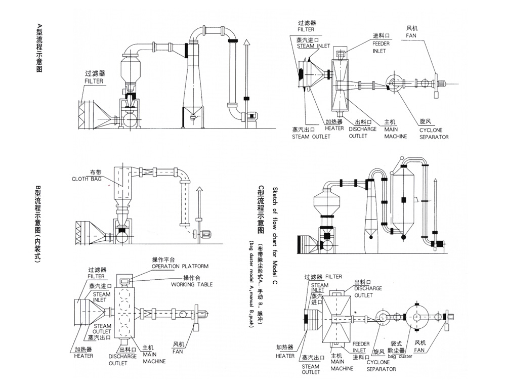
散粒状固体物料由加料器加入流化床干燥器中。过滤后的洁净空气加热后由鼓风机送入流化床底部经分布板与固体物料接触,形成流态化达到气固相的热质交换。物料干燥后由排料口排出,废气由沸腾床部排出经旋风除尘器和布袋除尘器回收细小粉料后排空。
简介:
沸腾干燥器,又称流化床,它是由空气过滤器、加热器、沸腾床主机、加料器、旋风分离器、布袋除尘器、高压离心风机、操作台等组成。由于干燥物料的性质不同,配套除尘设备时,可按需要考虑,可同时选择旋风分离器、布袋除尘器,也可选择其中一种,一般来说比重较大的如冲剂及颗粒物料干燥只需选择旋风分离器,比重较轻的小颗粒状和粉状物料需配套布袋除尘器,并备有气力送料装置供选择。
应用范围:
它适用于散粒状物料的干燥。如:医药药品中的原料药、压片颗粒、中药冲剂、化工原料中的塑料树脂、柠檬酸和其它粉状、颗粒状物料的干燥除湿,食品、食品加工、食品饮品冲剂、玉米胚芽、饲料等的干燥。物料的粒径一般为0.1~6mm,最佳粒径为0.5~3mm。
热源:
蒸汽、电、热风炉均可配用。(按客户要求配套)

技术参数

注:干燥能力与物料特性和进出口温度有关







